Beschrijving
Uitgebouwde gezinswoning (ca. 132m²) met hagelnieuwe badkamer, 4 slaapkamers en zonnige tuin!
Welkom aan De Vooruitgang 29 in Wervershoof! Deze instapklare, goed onderhouden gezinswoning is perfect voor wie op zoek is naar comfort, stijl en een fijne ligging in een rustige, kindvriendelijke woonwijk. Je profiteert hier van een sfeervolle woning met een landelijke keuken, een splinternieuwe badkamer uit 2025 en een verzorgde achtertuin.
Pluspunten op een rij:
- Instapklaar; geen kluswoning!
- Uitgebouwd aan de achterzijde
- Moderne badkamer (2025)
- Nette keuken voorzien van vernieuwde vaatwasser
- Sfeervolle kinderkamer met speels bosdierenbehang
- 4 Slaapkamers én een vliering voor extra opbergruimte
- Zonnige achtertuin met veel privacy
- Rustige ligging, ideaal voor gezinnen
- Goede verbinding met Hoorn en Enkhuizen
Indeling
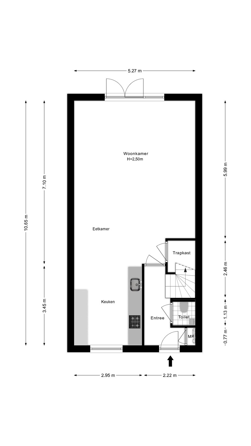
Begane grond
Je komt binnen in een nette hal met meterkast en toilet. Vanuit hier betreed je de ruime woonkamer met veel lichtinval. De open keuken (2009) heeft een warme, landelijke uitstraling en is in topconditie. De vaatwasser is recent vernieuwd, waardoor je jarenlang vooruit kunt. Het donkere werkblad en de ruime opstelling zorgen voor zowel sfeer als functionaliteit.
Eerste verdieping
Op de eerste verdieping bevinden zich drie slaapkamers, waaronder een prachtig ingerichte kinderkamer; een echte blikvanger! De badkamer is slechts 8 maanden oud en volledig voorzien van modern sanitair, een luxe inloopdouche, wandcloset én stijlvolle afwerking met visgraattegels.
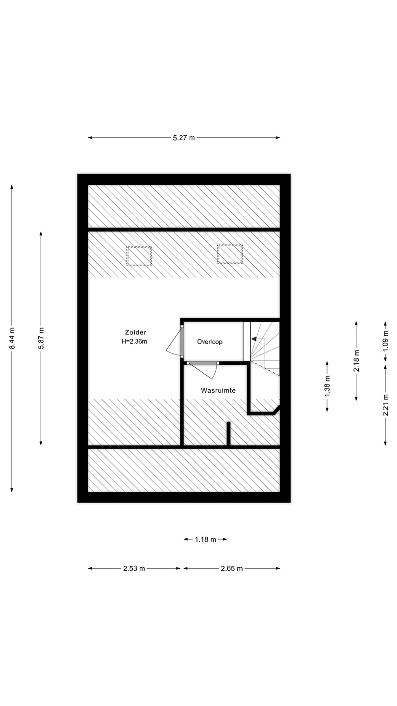
Zolder
De zolder is bereikbaar via een vaste trap en biedt ruimte voor een extra slaapkamer of thuiswerkplek. Verder is hier nog een separate wasruimte en nog een praktische vliering aanwezig.
Buitenruimte
De, op het zuiden gelegen, achtertuin is netjes aangelegd, goed onderhouden en biedt volop privacy. Met een berging en een handige achterom is het een fijne plek voor zowel ontspanning als praktisch gebruik. De steeg aan de achterzijde wordt alleen gedeeld met nummer 31. Zo blijft het lekker rustig!
Ligging
De woning ligt aan een rustige straat met alleen bestemmingsverkeer in een groene, kindvriendelijke woonwijk. Scholen, winkels, sportvoorzieningen en openbaar vervoer zijn in de directe omgeving aanwezig. Binnen 10 minuten ben je in Hoorn; ook Enkhuizen en Medemblik liggen vlakbij. Heerlijk wonen tussen het Markermeer en IJsselmeer!
Is dit jouw nieuwe (t)huis?
Maak snel een afspraak voor een bezichtiging. Deze woning is met zorg bewoond, keurig onderhouden en klaar voor de volgende stap. Je bent van harte welkom!