Beschrijving
Wonen in het hart van historisch Enkhuizen!
Soms kom je een huis tegen dat gewoon goed voelt. Karnemelksluis 11 is zo’n woning. Een plek met karakter, sfeer en een fijne ligging in een van de leukste straten van Enkhuizen. Hier woon je rustig, maar toch midden in de levendigheid van de stad.
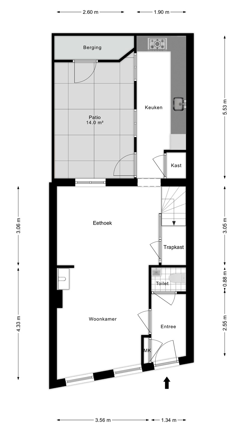
Achter de gevel vind je een verrassend ruim huis van circa 100 m², verdeeld over drie verdiepingen. De indeling is praktisch en prettig, met een lichte woonkamer waar de houtkachel meteen de aandacht trekt. Een fijne plek om te zitten! De woonkamer loopt over in de keuken, wat zorgt voor een open en gezellig geheel. De woning beschikt weliswaar over een energielabel D. Zowel de begane grond vloer (2023) als spouwmuur (2025) zijn na- geïsoleerd.
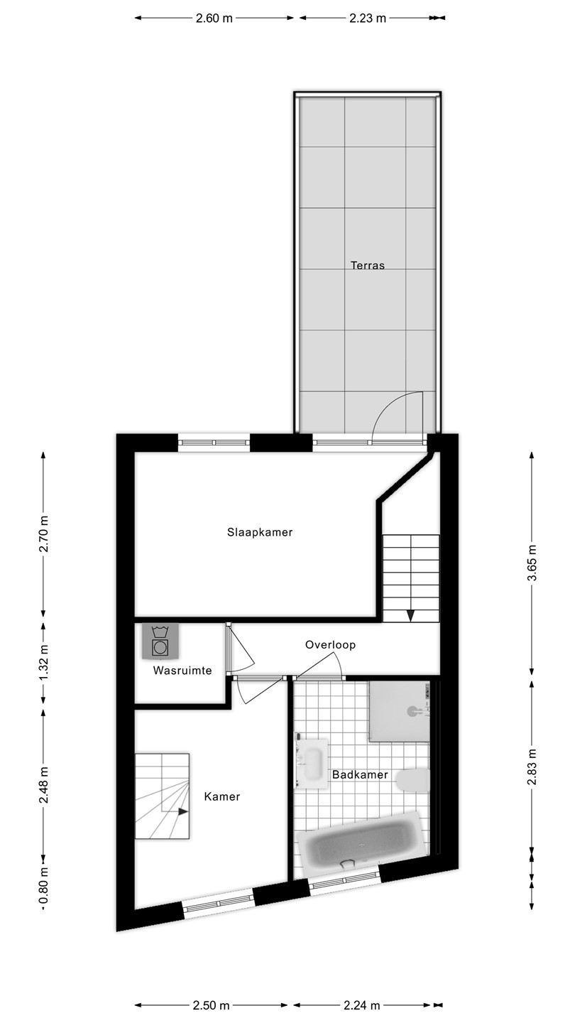
Op de eerste verdieping zijn twee goede slaapkamers te vinden. Beide kamers hebben een rustige uitstraling en bieden genoeg ruimte. De indeling is flexibel: naast slapen kun je hier ook prima een werkplek of hobbyruimte creëren. De badkamer is modern en voorzien van een ligbad, douchehoek, wastafelmeubel en tweede toilet. Vanuit de hoofdslaapkamer heb je toegang tot het platte dak!
Op de tweede verdieping bevindt zich de derde, ruime slaapkamer.
Buiten is het prettig! De beschutte stadstuin op het zuiden biedt verrassend veel privacy voor een woning in de binnenstad. Een fijne plek om buiten te zitten en even tot rust te komen.
De ligging maakt het geheel compleet. Je woont hier op loopafstand van de historische binnenstad van Enkhuizen, de haven, het IJsselmeer en diverse winkels en horeca. Alles wat de stad aantrekkelijk maakt, ligt dichtbij.