Beschrijving

Deze ruime en karakteristieke twee-onder-een-kapwoning met ca. 128m² woonoppervlakte in jaren '30-stijl met "koepeltje”, uitbouw, zonnige achtertuin op het westen, vrijstaande garage en mogelijkheden voor extra slaapkamers ligt in een rustige, kindvriendelijke straat in het centraal gelegen Venhuizen, tussen Hoorn en Enkhuizen. Kenmerkend zijn de recht opgetrokken gevels, het schilddak, de royale dakoverstekken en de twee erkers, beide voorzien van een eigen balkon.

De woning is gebouwd volgens het principe van houtskeletbouw, wat bekend staat om zijn energiezuinige eigenschappen: warm in de winter en koel in de zomer. De zonnige achtertuin op het westen, parkeergelegenheid op eigen terrein of in de garage en de kindvriendelijke wijk maken dit huis extra aantrekkelijk.

Indeling
In tegenstelling tot vergelijkbare woningen in de straat bevindt de voordeur zich aan de voorzijde van de woning. Via de hal, met meterkast, toilet, wasruimte, trapopgang naar de eerste verdieping en een praktische trapkast, komt u in de woonkamer.

De gehele begane grond is voorzien van een strakke tegelvloer. Wanden en plafonds zijn afgewerkt met spuitpleister. De tuingerichte woonkamer is circa 10 m² uitgebouwd. Dankzij de gunstige ligging, de nieuwe kunststof kozijnen en de erker aan de zijgevel is er een royale en lichte leefruimte ontstaan.

De keuken bevindt zich aan de straatzijde en is op maat gemaakt van goede kwaliteit. De keuken heeft houten fronten, veel bergruimte en is uitgerust met diverse inbouwapparatuur.

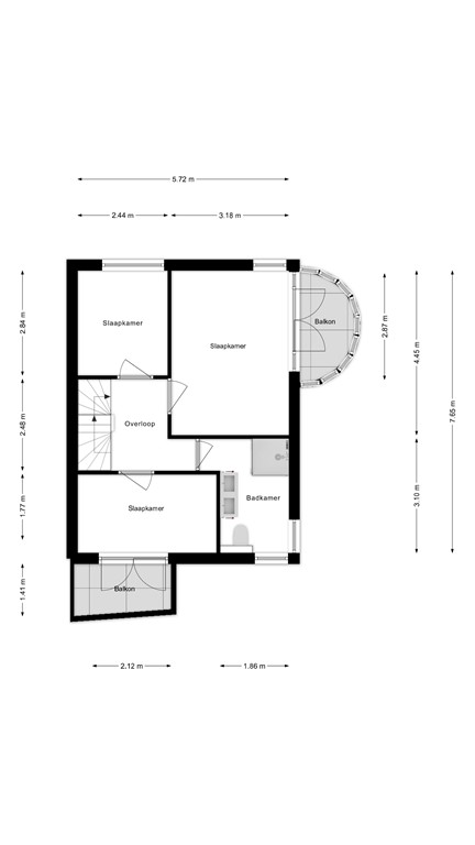
Eerste verdieping
Op de eerste verdieping bevindt zich de overloop met toegang tot de badkamer en drie slaapkamers, waarvan twee met een eigen balkon. De moderne badkamer is compleet uitgevoerd met een wastafelmeubel, inloopdouche en een tweede toilet.

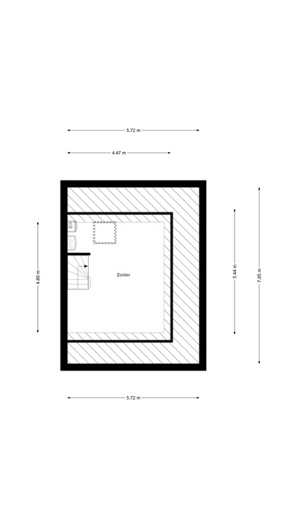
Tweede verdieping
Via een vaste trap bereikt u de tweede verdieping. Dit is momenteel een open ruimte waar de heteluchtverwarmingsinstallatie uit 2024 en Cv-installatie uit 2019 en Warmte-terug-wininstallatie zijn opgesteld. De ruimte beschikt over een dakvenster en rondom bergruimte achter de knieschotten. Het realiseren van een vierde en/of vijfde slaapkamer behoort hier zeker tot de mogelijkheden!

Tuin en garage
De achtertuin ligt op het zonnige westen en is bereikbaar via een achterom. Achter in de tuin bevindt zich de stenen garage met een aparte loopdeur en een stalen kanteldeur. De garage is bereikbaar via het pad langs de woning, dat uitsluitend voor dit perceel toegankelijk is met de auto.

Venhuizen ligt centraal tussen Hoorn en Enkhuizen. Lelystad bereikt u binnen ongeveer een half uur en Amsterdam ligt op circa 55 kilometer afstand. In het dorp vindt u onder andere een supermarkt, een wijkgebouw, twee cafés, een drogisterij met postloket, bakker, basisschool en verschillende sportverenigingen.

Bent u op zoek naar een ruim opgezette, goed gelegen en karakteristieke twee-onder-een-kapwoning met een eigen uitstraling? Wij vertellen u graag meer tijdens een bezichtiging.

Kenmerken