Beschrijving

Unieke woonkans met karakteristieke uitstraling en potentie in het hart van de stad!

In het historische centrum van Medemblik, aan een rustige straat, staat deze compacte woning uit 1956. Met een woonoppervlakte van circa 56 m² is dit een compacte woning, maar door een slimme indeling en moderne afwerking kan hier een verrassend comfortabele en eigentijdse woonplek ontstaan. Ben jij op zoek naar een betaalbare woning met mogelijkheden, waarbij je jouw eigen woonideeën kunt realiseren? Dan is Achterom 7 jouw kans!

De ligging is absoluut een pluspunt. Je woont hier in het historische hart van Medemblik, op korte afstand van winkels, supermarkten, horeca, openbaar vervoer en de gezellige haven. Alles wat het stadse leven aantrekkelijk maakt, bevindt zich op loopafstand, terwijl je toch profiteert van de rust van een kleinschalige straat.

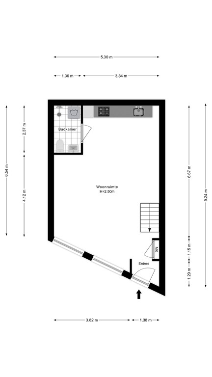
Begane grond
Entree met toegang tot de woonkamer. De woonkamer vormt het hart van de woning en biedt een fijne basis voor een sfeervolle leefruimte. Aansluitend bevindt zich de vernieuwde, open keuken met koelkast, gaskookplaat en afzuigkap. Ook de badkamer met douche, toilet en wasmachineaansluiting bevindt zich op de begane grond.

Eerste verdieping
Op de verdieping is de slaapkamer gesitueerd. Door de kapconstructie ontstaat hier een knusse ruimte met mogelijkheden voor slimme indelingsoplossingen, bijvoorbeeld door een dakkapel en met maatwerk kasten of extra bergruimte.

De woning dient aangepakt en gemoderniseerd te worden, wat volop kansen biedt om de indeling te optimaliseren en het wooncomfort naar deze tijd te brengen.

Ben jij niet bang om de handen uit de mouwen te steken en zie je de mogelijkheden die deze woning te bieden heeft? Maak dan snel een afspraak voor een bezichtiging en ontdek de potentie van Achterom 7 in Medemblik.

Interesse? Neem contact met ons op voor meer informatie of een bezichtiging.

Kenmerken