Beschrijving

Licht, comfort en rust: heerlijk wonen op een schiereiland aan de Plevier in Hoogkarspel!

Soms kom je binnen in een woning en weet je het meteen: dit voelt goed. Dat is precies het geval bij dit verzorgde 2-kamerappartement van ca. 67m² aan de Plevier in Hoogkarspel. Hier woon je rustig, comfortabel en met alles binnen handbereik. Ideaal voor wie op zoek is naar gemak, licht en een prettig thuisgevoel.

Het complex oogt vriendelijk en verzorgd, met een prachtig aangelegde binnentuin vol groen en bloemen. De overdekte galerijen geven het geheel een open en veilige uitstraling. Dankzij de lift is iedere verdieping gemakkelijk bereikbaar, wat een groot pluspunt is voor wie graag gelijkvloers wil wonen.

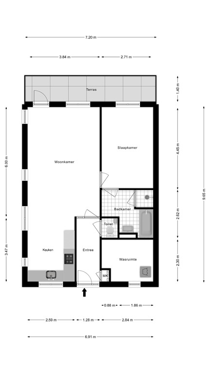
Binnen wacht een lichte en sfeervolle woonkamer met ramen rondom, waardoor het daglicht vrij spel heeft. De ruimte voelt open en gezellig tegelijk, met genoeg plek voor een fijne zithoek en een eettafel waar je met plezier de dag begint of afsluit. Via de woonkamer stap je het zonnige balkon op, waar je kunt genieten van de frisse lucht en het uitzicht op de omgeving.

De keuken is keurig onderhouden en uitgevoerd in lichte tinten, met een klassieke uitstraling en volop kastruimte. Hier kook je met plezier, of je nu iets snels wilt bereiden of uitgebreid wilt koken voor bezoek.

De slaapkamer is ruim bemeten en biedt voldoende plek voor een groot bed en kledingkast. Direct daarnaast vind je de badkamer met douche, ligbad en wastafel.

In de aparte technische ruimte zijn de wasmachine en droger netjes weggewerkt, evenals de vernieuwde CV- (Intergas CW4 uit 2019) en WTW-installatie. Alles is dus goed geregeld voor zorgeloos dagelijks comfort. Bovendien zijn er tijdens het aanleggen van de zonnepanelen voor het gebouw in 2018, ook 9 zonnepanelen voor eigen gebruik geïnstalleerd!

Bij het appartement hoort een parkeerplaats op eigen terrein, zodat je altijd verzekerd bent van een plekje voor de deur. Ook is er een gezamenlijke fietsenberging met ruimte voor een eigen afsluitbare kast, ideaal voor het veilig stallen van fietsen en extra spullen.

Van de maandelijkse servicekosten worden onder andere het onderhoud van het gebouw, de lift en de gezamenlijke ruimten keurig verzorgd. De vereniging van eigenaars wordt beheerd door een professionele partij. Dat betekent: geen zorgen, gewoon genieten.

De ligging is bovendien perfect. Rustig, maar toch centraal. Winkels, openbaar vervoer en andere voorzieningen zijn op loopafstand bereikbaar. Alles wat je nodig hebt, ligt letterlijk om de hoek. Een leuke extra is dat het complex is gelegen aan doorgaand vaarwater met 2 aanlegsteigers. Hier kunt u dus uw bootje aanleggen om 's zomers de Westfriese omgeving vanaf het water te ervaren.

Kortom: dit appartement biedt precies wat je zoekt als starter of als je comfortabeler wilt gaan wonen. Licht, rust, gemak en een verzorgde omgeving komen hier mooi samen. Een plek om met plezier thuis te komen, elke dag opnieuw.

Nieuwsgierig geworden? We laten je dit fijne appartement met energielabel A graag in het echt ervaren.

Kenmerken