Beschrijving
Wonen op een hoek met nét dat beetje extra. Meer licht, meer ruimte en simpelweg meer woongenot!
Zodra je de Dahliastraat in rijdt, springt nummer 24 er direct uit. Een charmante hoekwoning (125m²) met erker, ruime living met vloerverwarming, nette keuken, 4 slaapkamers en luxe badkamer uit 2023! Verder beschikt deze woning ook over een oprit voor meerder auto's, een royale vrijstaande garage, een fijne tuin en een frisse uitstraling. Hier woon je in alle rust, met nét iets meer ruimte, privacy én mogelijkheden dan de gemiddelde tussenwoningen in de straat. Ideaal voor zowel (door)starters als gezinnen die op zoek zijn naar ruimte en comfort, zonder in te leveren op bereikbaarheid of voorzieningen.
Een rustige straat, maar alles dichtbij..
Deze woning ligt in een kindvriendelijke en rustige buurt, met volop groen en speelvoorzieningen om de hoek. Binnen een paar minuten lopen bereik je het centrum van Hoogkarspel, waar je in en om het winkelcentrum terechtkunt voor de dagelijkse boodschappen, een vers broodje bij de bakker of een gezellige lunch op het terras!
Voor gezinnen met (jonge) kinderen is het extra prettig dat er meerdere basisscholen en kinderopvanglocaties in de directe omgeving zijn. Ook sportliefhebbers van voetbal en tennis tot fitness zitten hier goed, alles is in de buurt aanwezig.
Goed bereikbaar: met de trein of de auto zo onderweg!
Vanuit de Dahliastraat 24 ben je verrassend snel onderweg. Het NS-station Hoogkarspel ligt op loop- of fietsafstand en brengt je met de intercity binnen ca. 40 minuten naar Amsterdam Centraal. Ideaal voor wie werkt in de stad, maar niet in de drukte wil wonen. Liever met de auto? Binnen enkele minuten zit je op de N307 of de A7 richting Amsterdam of Leeuwarden.
Indeling van de woning
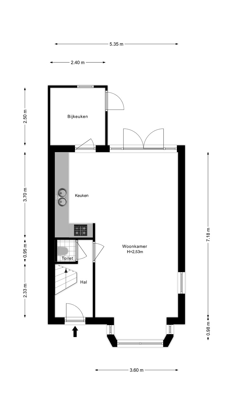
Begane grond:
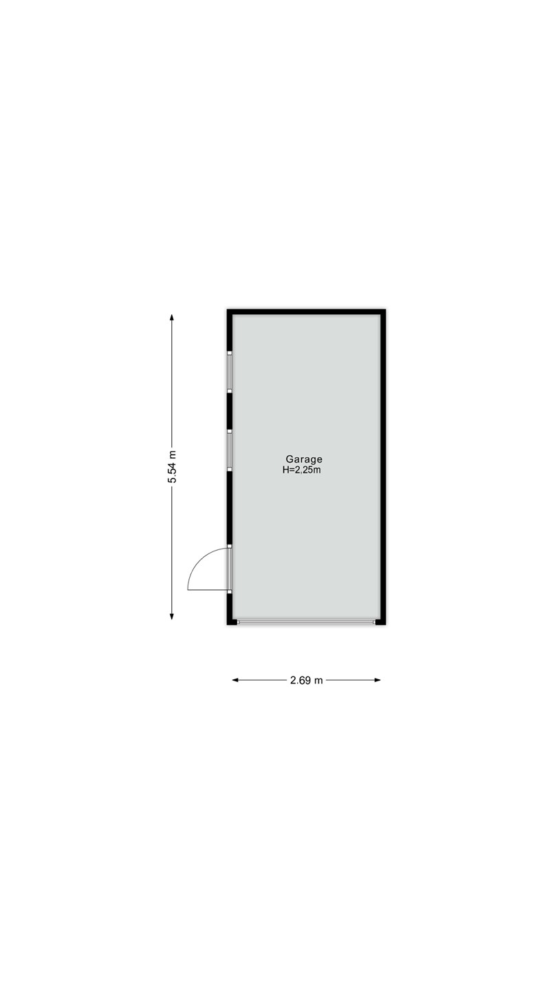
De hal met garderobe en nette toiletruimte leidt naar een lichte en ruime woonkamer met veel daglicht dankzij de erker, extra zijraam en openslaande tuindeuren. De gehele begane grond is voorzien van vloerverwarming. Ideaal in de winterperiode! De open hoekkeuken is uitgevoerd in moderne kleuren en voorzien van de nodige inbouwapparatuur. Aansluitend tref je een praktische bijkeuken met aansluitingen voor de wasmachine, droger en CV installatie. Vanuit de bijkeuken heb je toegang tot de verassend ruime, onderhoudsvriendelijke tuin met aangebouwde berging én een vrijstaande stenen garage van ca. 21m². De garage is goed geschikt voor hobbyisten, opslag of natuurlijk je auto.
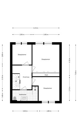
Eerste verdieping:
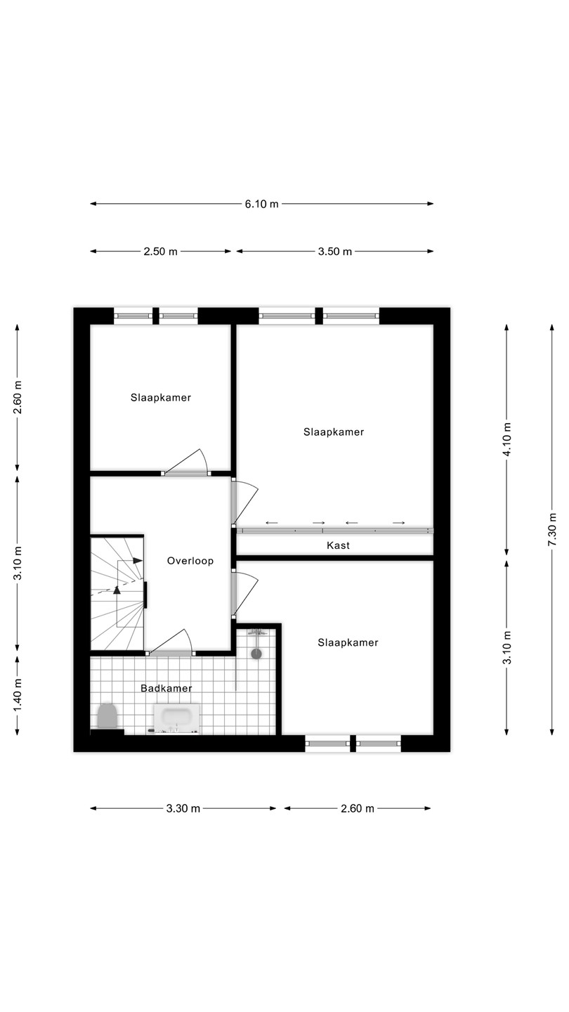
Op de eerste verdieping bevinden zich drie ruime slaapkamers (waarvan 1 met vaste kastenwand) en een prachtige, luxe badkamer uit 2023 met inloopdouche, breed wastafelmeubel en tweede toilet. Hier begin je de dag zeker goed!
Tweede verdieping:
Via een vaste trap bereik je de tweede verdieping met de ruime vierde slaapkamer met dakkapel en bergruimte achter het knieschot. Deze ruimte is ideaal als werkkamer, logeerkamer of tienerplek.
Pluspunten van Dahliastraat 24:
- Moderne hoekwoning van 125m²;
- Vrijstaande stenen garage en oprit;
- Energielabel C;
- Onderhoudsvriendelijke tuin;
- Vier slaapkamers, nieuwe badkamer;
- Dakkapel op de tweede verdieping;
- Deels kunststof kozijnen;
- Rustige straat, kindvriendelijke buurt;
- NS-station, winkelcentrum en scholen op korte afstand;
- Oplevering in overleg (medio januari/ februari 2026)
Kom het zelf ervaren!
Ben je op zoek naar een instapklare hoekwoning met nét dat beetje extra ruimte, comfort en vrijheid? Laat je dan verrassen door Dahliastraat 24. Bel of mail ons voor een bezichtiging. Wij laten je met plezier alle mogelijkheden van deze fijne woning zien!