Beschrijving

Op zoek naar een royale woning waar je zó in kunt? Aan de Gruttolaan 91 staat deze uitstekend onderhouden en smaakvol gemoderniseerde eengezinswoning met vier volwaardige slaapkamers, twee badkamers, een stijlvolle keuken en een zonnige achtertuin met overkapping en berging. Met een woonoppervlakte van ruim 130 m² biedt deze woning opvallend veel ruimte. De volledige isolatie, 12 zonnepanelen én energielabel A maken het geheel niet alleen comfortabel, maar ook toekomstbestendig. Een woning die je absoluut gezien moet hebben!

De woning is gunstig gelegen in een prettige en kindvriendelijke woonomgeving. Op korte afstand vind je een winkelcentrum voor de dagelijkse boodschappen, evenals het gezellige centrum van Enkhuizen met diverse winkels en horecagelegenheden. Ook het NS-station is goed bereikbaar, waardoor je snel verbinding hebt met omliggende steden. Daarnaast zijn de uitvalswegen in de nabije omgeving, wat zorgt voor een uitstekende bereikbaarheid met de auto.

Indeling
Begane grond
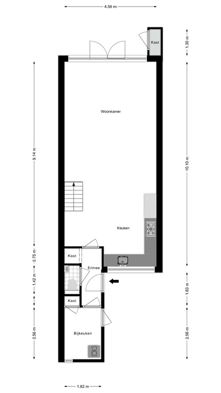
Via de entree betreed je de hal met garderoberuimte, die toegang biedt tot het toilet, de wasruimte in de voormalige berging aan de voorzijde en de tuingerichte woonkamer. De woonkamer met openslaande deuren naar de zonnige achtertuin is ruim opgezet en gemoderniseerd. Vanuit de woonkamer heb je via een open trap toegang tot de eerste verdieping. Aan de voorzijde bevindt zich de stijlvolle keuken in hoekopstelling, voorzien van diverse inbouwapparatuur zoals een combi-oven, vaatwasser en inductiekookplaat. De begane grond is voorzien van vloerverwarming!

Eerste verdieping
Via de open trap bereik je de eerste verdieping. Hier bevinden zich drie ruime slaapkamers en een nette badkamer, uitgerust met een ligbad, douche, toilet en wastafelmeubel. Op deze verdieping zijn 2 airco-units én vloerverwarming aanwezig.

Tweede verdieping
De vaste trap leidt naar de verrassend ruime tweede verdieping. Hier vind je de vierde slaapkamer (ook met airconditioning) en een tweede badkamer, voorzien van een douche, toilet en wastafelmeubel. Ideaal voor een volwassen gezin! Tevens is er via deze verdieping toegang tot de vlizozolder, die extra bergruimte biedt.

Tuin
De ruime achtertuin is netjes aangelegd met bestrating en een verzorgde erfafscheiding. Dankzij de ligging op het westen kan je hier volop genieten van de middag- en avondzon. De tuin beschikt over een houten berging met een fraaie overkapping, ideaal om het hele jaar door buiten te zitten!

Interesse? Laat je verrassen door de ruimte en het comfort van deze woning. Neem vandaag nog contact op voor een bezichtiging en ervaar het zelf!

Kenmerken